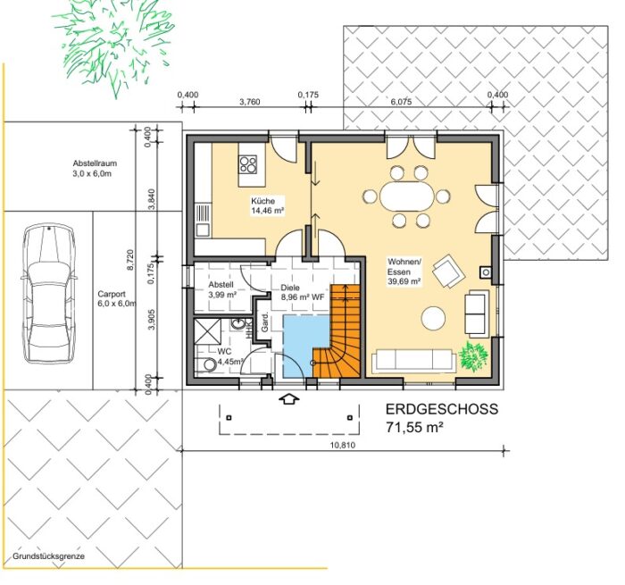
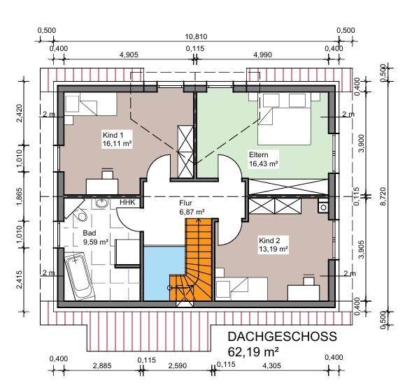
Dieses fast fertiggestellte Haus mit ca. 134 m² Wohnfläche zzgl. Kellergeschoss wird erst Ende Juni 26 von den Bauherren bezogen. Bis dahin steht uns diese Immobilie für Besichtigungszwecke zur Verfügung. Bauinteressierte, die auf der Suche nach Anregungen oder Ideen für das eigene Bauvorhaben sind, können gerne einen Besichtigungstermin vereinbaren. (Ihr Ansprechpartner: Mike Räker 0174 – 299 99 19)




